Facebook Twitter LinkedIn YouTube E-mail RSS
Home Blog Flats coming along
formats

Flats coming along

Published on September 13, 2007 by in Blog

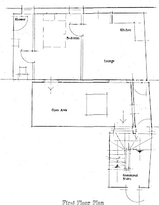
Here are my modifed plans for the flat 😉
I know you have walk through the bedroom to the loo
but cant really justify a coridor, such a waste of space!

Planning should be back from the council on the 9th Oct 🙂
then we are good to build lol

 
 Share on Facebook Share on Twitter Share on Reddit Share on LinkedIn
3 Comments  comments 

3 Responses

  1. Malibu Stacey

    So cant wait, ill be stepping back from the building work…..there will be far to much testosterone for my liking, ill wait till the decor becomes an issue lol!!!!!

  2. Iccle Anne

    Cool! Slightly confused by the plan, for example whats the open area? As long as you love it, that the main things. Glad to see we’re not the only ones with a shower-room rather than bathroom.

  3. Drew

    yeah……the open area is a flat roof at the moment, but at some point in hte future will be lowered creating a little courtyard for the other flat downstairs(workshoop at the mo)

@Dawntracker